
Vångavägen
Vittsjö
Hyreskostnad
8 650 kr/mån
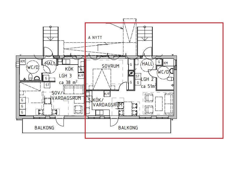
FastighetstypLägenhet
Boarea51 m²
Rum2
Tillgänglig2026-02-19
Beskrivning
Nu tillsätter vi lägenheterna i byggnaden Annexet. Tillträde är möjligt from 1 maj. I hjärtat av Vittsjö där du bor med fantastiska rekreationsområde som granne, och ändå bara ett stenkast till handel & tåg/bussförbindelser. Här kommer du/ni bo i lugn harmonisk miljö med tillgång till det lummiga parkområdet som endast kommer kunna beträdas av boende & besökande. Om boendet: Här har du ett nybyggt boende som håller hög standard. Lägenheten har kök från Ballingslöv med vitvaror från Cylinda. Diskmaskin i samtliga kök & tvätt/tork-maskin i badrummet. Härlig balkong med fantastiskt utsikt över to...
Funktioner
✓Pets
✓Wheelchair accessible
✓Senior
✓Firsthand
