
Tvillingstavägen
Örnsköldsvik
Hyreskostnad
11 350 kr/mån
FastighetstypLägenhet
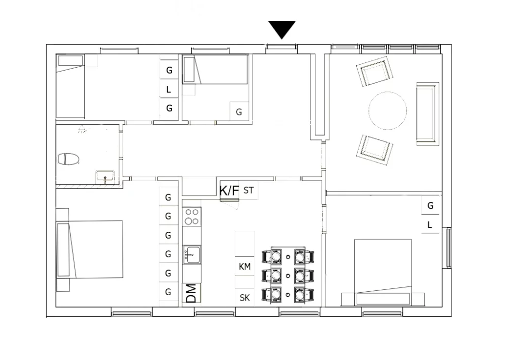
Boarea100 m²
Rum5
Tillgänglig2025-12-28
Beskrivning
Ljus lägenhet på plan 2 i trefamiljshus. God förvaring, solig uteplats med egen trädgård, fyra rymliga sovrum med god förvaring, stort kök med tvättmaskin och matplats för 6 personer. Badrum med dusch och ny tvättmaskin+torktumlare. Entré med fungerande kamin och stor rymlig hall med förvaringsmöjligheter. Vardagsrum med stora fönster och dörr ut till trädgården. Vacker öppen spis (ej brukbar). Möjligt att hyra parkeringsplats med motorvärmare för 250 kr/månaden, det finns två tillgängliga. Trevligt och lugnt område i Ås, nära slalombacken, lekplatser, kommunikationer. Många barnfamiljer i omr...
Funktioner
✓Pets
✓Firsthand
