
Stockenströms väg
Strängnäs
Hyreskostnad
8 727 kr/mån
FastighetstypLägenhet
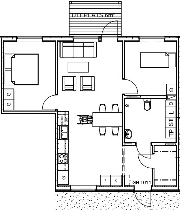
Boarea69 m²
Rum3
Tillgänglig2026-03-23
Beskrivning
Välkommen hem till Stockenström 12! Här ges möjlighet att bli den första hyresgästen att hyra en 3 RoK på ca 70 kvm som är en helt nyproducerad bostad som innefattar konceptet Trygghetsboende 65+ Inflyttning är planerad till sommaren 2025. Grundhyran ligger på 8.727kr/mån Om hyran: Värme, vatten samt el undermäts i varje lägenhet som sedan debiteras på hyresavin. Hyran är fastställd och förhandlad med Hyresgästföreningen. I lägenheten finns att tillgå: - Diskmaskin, - Kylskåp, - Frysskåp, - Ugn, - Induktionshäll, - Mikro, - Tvättmaskin, - Torktumlare, - Uteplats.
Funktioner
✓Pets
✓Wheelchair accessible
✓Senior
✓Firsthand
