
Skalldalsbacken
Hovås
Hyreskostnad
13 500 kr/mån
FastighetstypLägenhet
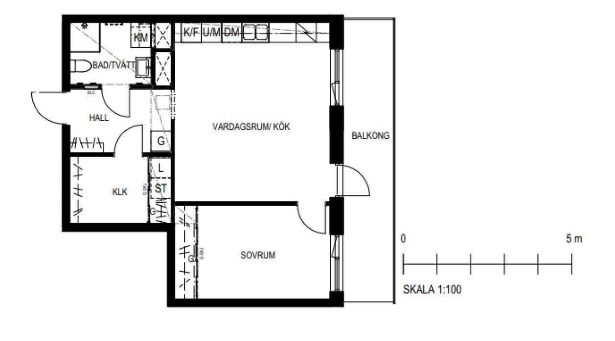
Boarea55 m²
Rum2
Tillgänglig2026-02-09
Beskrivning
I rent my nice apartment in Hovas close to the beach and close to the highway, available right away for long term. Heat, water, internet are included in the rent. The apartment is completly newly build. There ia possibility for parking at extra cost.
Funktioner
✓Pets
✓Wheelchair accessible
