
Prästbodavägen
Salem
Hyreskostnad
13 975 kr/mån
FastighetstypLägenhet
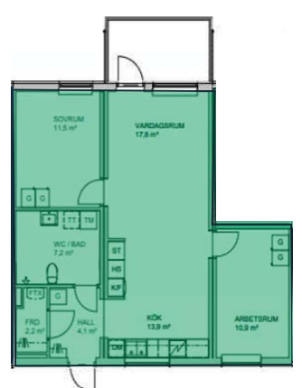
Boarea73 m²
Rum3
Tillgänglig2026-03-05
Beskrivning
Lägenheten har genomgående mattlackad ljus ekparkett, vitmålade väggar och fönsterbänkar i granit. Kök med vita luckor, laminatbänkskiva och stänkskydd i vitt kakel är utrustat med induktionshäll, inbyggnadsspis, integrerad diskmaskin, kyl/frys, källsortering samt plats för mikro. Badrummets väggar är helkaklade i vitt med ett grått laminatgolv och utrustat med tvättmaskin och torktumlare, handdukstork samt förvaringsmöjlighet. Förråd är placerat i lägenhet. I fastigheten är det rökfri boendemiljö. Det betyder att hyresgästen eller besökare inte får röka i lägenheten, på balkong, eller i huset...
Funktioner
✓Pets
✓Wheelchair accessible
✓Firsthand
