
Postvägen
Värmdö
Hyreskostnad
10 000 kr/mån
FastighetstypBostad
Boarea100 m²
Rum3.5
Tillgänglig2025-12-16
Beskrivning
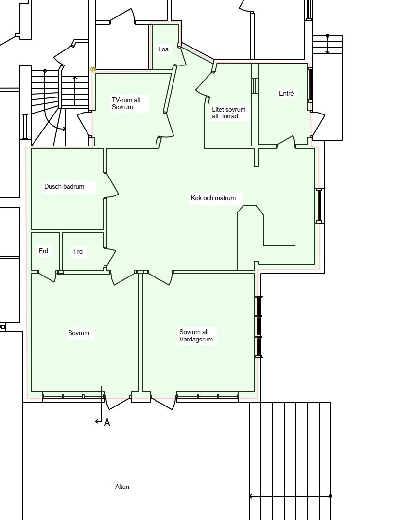
Nu hyr vi ut en del av vårt hus för en längre tid, i delen har det bedrivits B&B under många år. Bostaden kan också passa utmärkt för 2 studenter och möbleras upp efter det eller för den lilla familjen. Lägenheten är 100 kvm stor med totalt 3,5 rum och kök. 2 stora sovrum, alternativt ett sovrum och ett vardagsrum, fullt utrustat kök med matplats för 4-6 personer, badrum med dusch, toalett, förråd och en stor hall, litet tv-rum alternativt sovrum med 3-sits soffa och ytterligare ett litet rum som kan användas som förråd eller sovrum. Tillgång till tvättmaskin och torktumlare i källaren. Bostad...
Funktioner
✓Pets
✓Möblerad
