
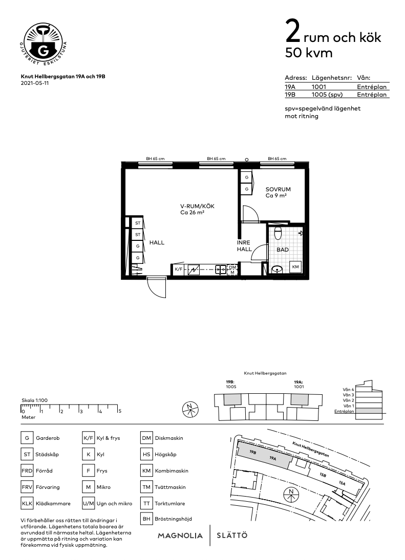
Knut Hellbergsgatan
Eskilstuna
Hyreskostnad
7 835 kr/mån
FastighetstypLägenhet
Boarea50 m²
Rum2
Tillgänglig2026-02-24
Beskrivning
På Gjuteriet bor du bekvämt, stilrent med högsta standard. Lägenheterna är luftiga och en erbjuder gott om förvaring. De stilrena köken från HTH i grått har en genomtänk planering och vitvaror från Bosch. För att tänka kvadratsmart har vi i kvarterets mindre lägenheter valt en kombinerad kyl/frys och smalare diskmaskin. De helkaklade badrummen går i en klassisk färgkombination av vit och grå inredda med tvättmaskin och torktumlare alternativt kombimaskin. Utöver hyran debiteras värme, vatten och el genom individuell förbrukning. Bredband tecknar du själv med valfri leverantör. Garageplatser fi...
Funktioner
✓Pets
✓Firsthand
