
Järnvägsgatan
Skövde
Hyreskostnad
3 229 kr/mån
FastighetstypLägenhet
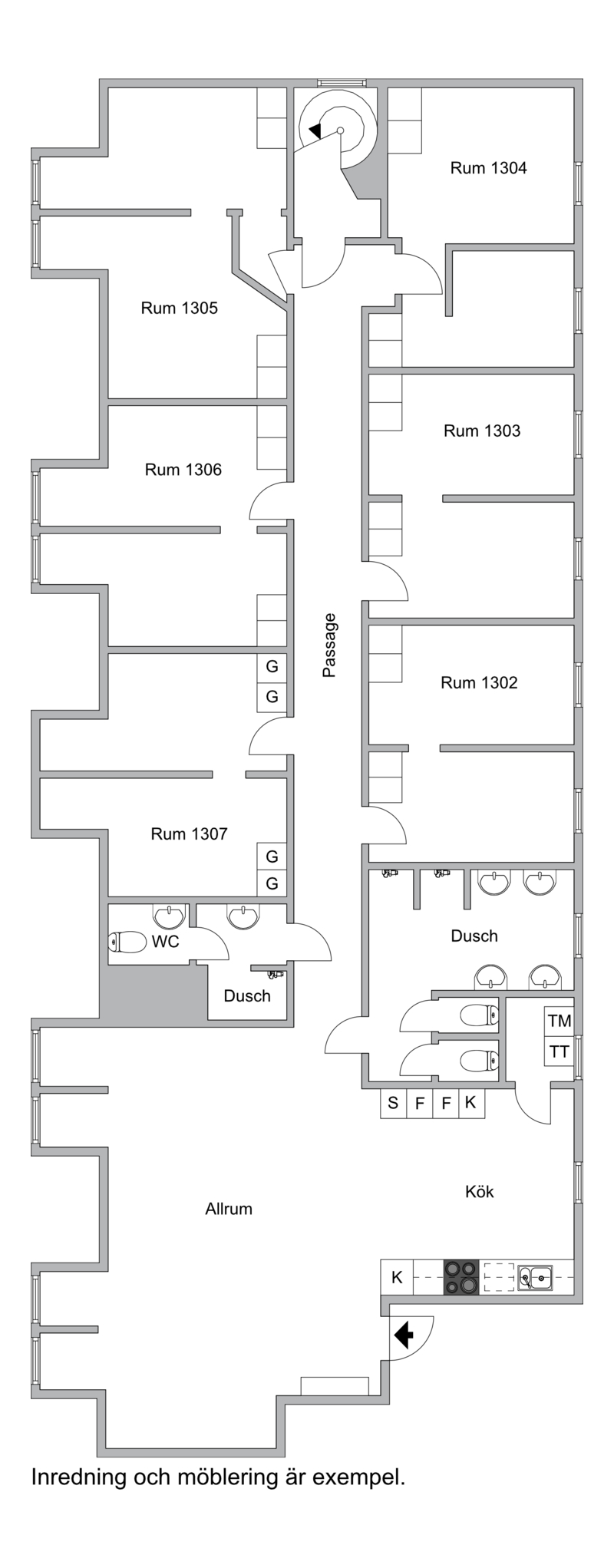
Boarea18 m²
Rum1
Tillgänglig2026-03-10
Beskrivning
Se hit! Är du i behov av att hyra ett studentrum? Eller börjar det bli dags att flytta hemifrån och du letar efter ditt första egna boende? Då kanske detta passar dig perfekt! Välkommen till ett hemtrevligt rum som ligger i en korridor! Här delar du kök, vardagsrum och badrum med övriga boende. Det finns två stycken badrum, varav det ena badrummet är utrustat med en dusch, en toalett och två handfat. Det andra badrummet är utrustat med två duschar, två toaletter och fyra handfat. Från köket har du tillgång till en liten tvättstuga med tvättmaskin och torktumlare. Skafferier, kylar och frysar h...
Funktioner
✓Pets
✓Firsthand
