
Åsvägen
Ramnäs
Hyreskostnad
6 665 kr/mån
FastighetstypLägenhet
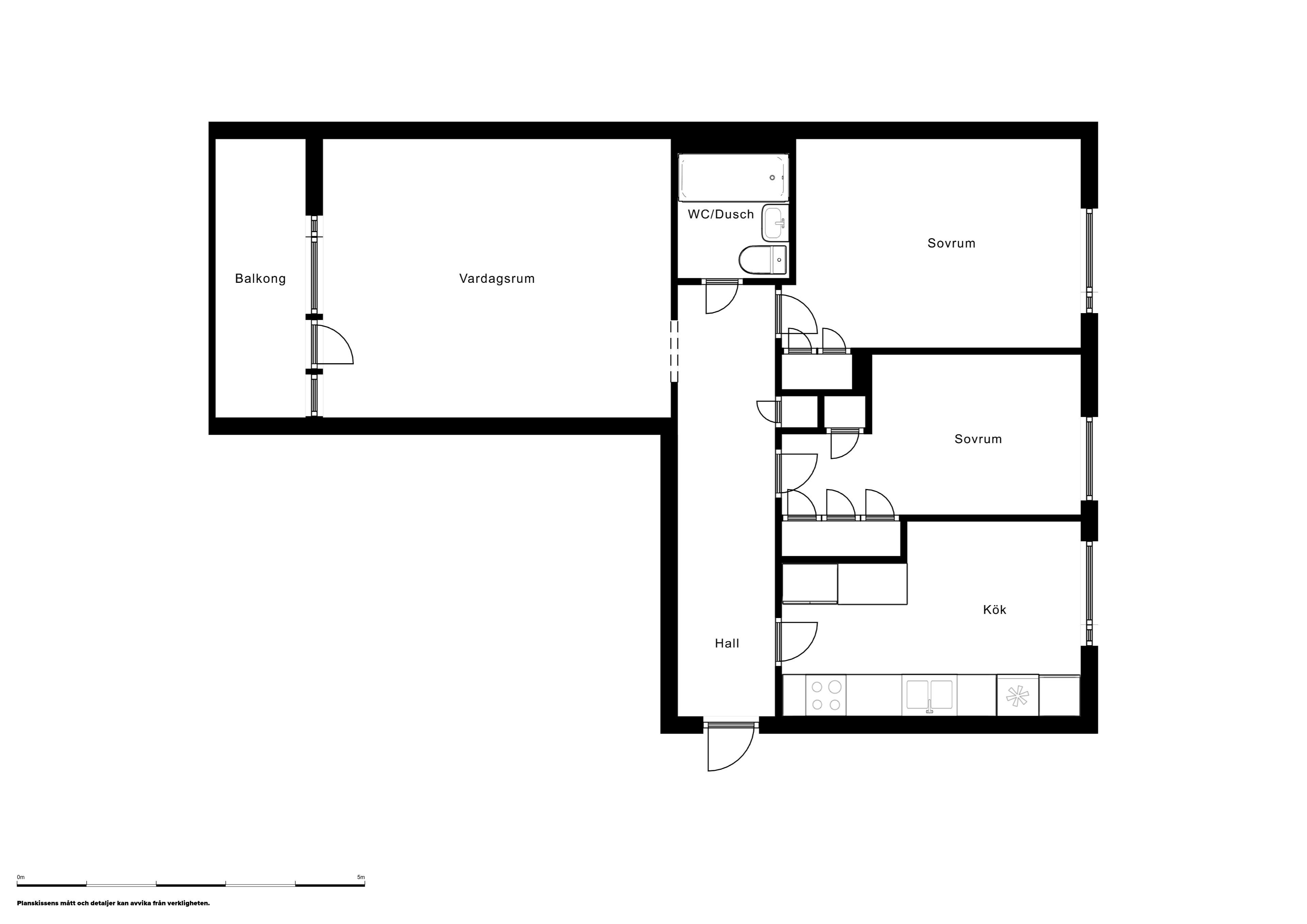
Boarea67 m²
Rum3
Tillgänglig2026-03-06
Beskrivning
3 rok i Ramnäs – gavellägenhet med balkong Välkommen till denna ljusa och välplanerade trea på andra våningen i Ramnäs. Lägenheten är en gavellägenhet vilket ger ett fint ljusinsläpp från flera väderstreck och skapar en luftig och trivsam boendemiljö. Bostaden erbjuder en funktionell planlösning med ett rymligt vardagsrum, två sovrum samt kök med plats för matbord. Från lägenheten finns även balkong som ger en extra yta för avkoppling. Förvaringsmöjligheterna är goda tack vare flera garderober i bostaden. Tvättstuga finns i fastighetens källare. Lägenheten håller just nu på att målas om för at...
Funktioner
✓Pets
✓Smoking
✓Firsthand
