
Aniaravägen
Arkelstorp
Hyreskostnad
11 250 kr/mån
FastighetstypBostad
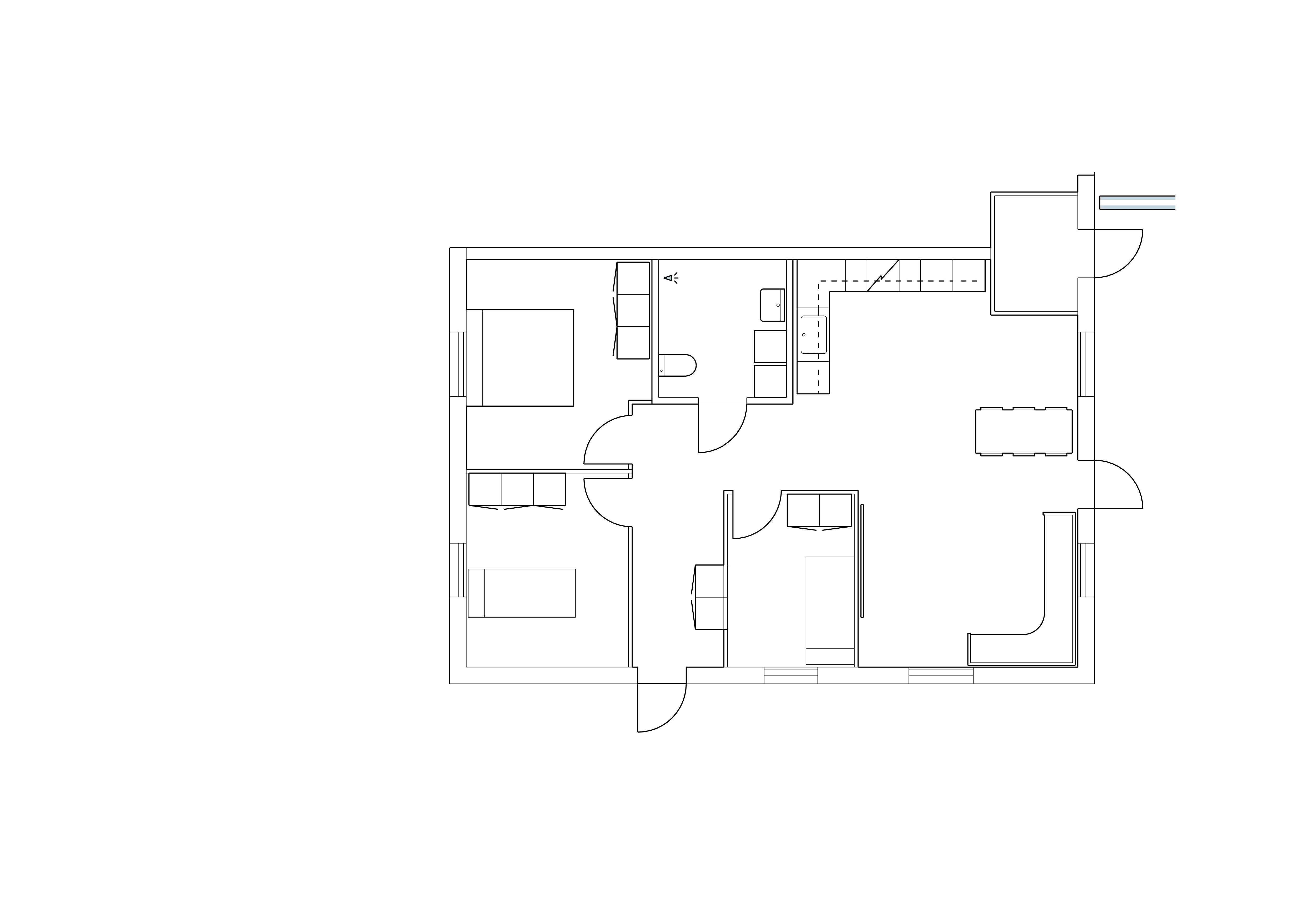
Boarea89 m²
Rum4
Tillgänglig2025-12-22
Beskrivning
Nybyggt parhus uthyres. Varmhyra 11250 kr Nybyggt parhus med hög standard i Arkelstorp Öppen planlösning mellan kök och vardagsrum med anslutning till uteplats. -Golvvärme -Köksinredning från Epoq -Vinylgolv i sovrum, klinker på övriga golvytor -Kakel/klinker i badrum -Fiber Kontakta för visning
Funktioner
✓Pets
✓Smoking
✓Wheelchair accessible
